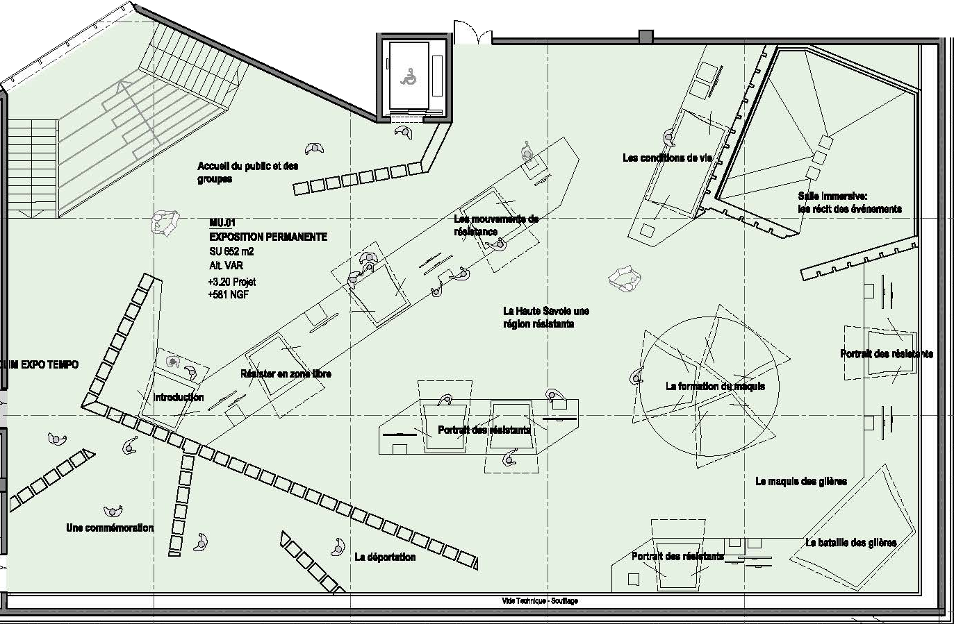
mémorial Morette


Participation à un  
concours avec Atelier Maciej Fiszer
en collaboration avec Kengo Kuma & Associates
scénographie d’exposition permanente
Haute-Savoie, 2024


Haute-Savoie, 2024

MARIUS BELEMGUENAI © 2025 — PARIS